Locuinta speciala intr o zona superba pe lac

Aceasta proprietate a fost deja vanduta! Pentru oferte similare contactati agentul
ID: P139840 Constanta, Exterior Nord 112
340.000€ 350.000€
Descriere
Comision 0%
Reprezentare Exclusiva

Un apartament spectaculos, unde eleganța întâlnește confortul absolut.

Cu o priveliște panoramică asupra lacului Siutghiol și o terasă ce redefinește ideea de outdoor living, această proprietate este creată pentru cei care își doresc mai mult decât un simplu loc de locuit.

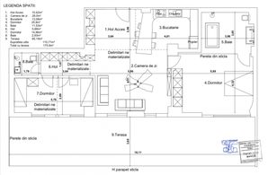
Detalii cheie:
• Suprafață impresionantă – 110 mp (interior) + 65mp(terasa) + 60mp(spatii depozitare)
• Terasa iconică – 65 mp, cu acces direct către peluza complexului
• Spațiu privat ptr depozitare – 70 mp
• Design aparte si amenajare speciala
• Vedere frontală completă asupra lacului Siutghiol
• Acces la debarcader – un must pentru pasionații de sporturi nautice
• Posibilitate parcare subterană (contracost)
• Finisaje premium – parchet și mobilier din stejar masiv

Avantaje:
• Living și dormitoare scăldate în lumină naturală, cu priveliște directă către lac
• Intimitate, liniște și siguranță într-un cadru rezidențial select
• Un lifestyle la standarde internaționale, chiar în inima stațiunii Mamaia

Mai mult decât o proprietate, este o experiență de viață pe malul lacului, in zona Butoaie - Mamaia.


Caracteristici
  • ID:P139840
  • Nr. camere:4
  • Nr. dormitoare:3
  • S. utila:235.00 mp
  • S. terase:65.00 mp
  • S. utila totala:300.00 mp
  • S. construita:300.00 mp
  • Comp.:Decomandat
  • Confort:Lux
  • Etaj:Parter
  • Nr. bucatarii:1
  • Nr. bai:2
  • Nr. balcoane:1
  • An constructie:2015
  • An renovare:2020
  • Structura:Beton
  • Tip imobil:Bloc
  • Regim inaltime:P+8
  • Orientare:Vest
  • Clasa energetica:A
Specificatii
Curent
Apa
Canalizare
Gaz
Acces internet
Centrala proprie
Calorifere
Aer conditionat
Izolatie Exterior
Vopsea lavabila
Faianta
Parchet
Gresie
Ferestre PVC
Usa intrare Metal
Usa interior Lemn
Terasa
Pivnita
Bucatarie Mobilata
Bucatarie Utilata
Apometre
Contor caldura
Contor gaz
Complet mobilat
Interfon
Lift
Spatii agrement
Localizare
Adrian Dunareanu
Founder & Advisor
Esti interesat de aceasta proprietate ?
Proprietati similare
Imagine 1641
Scapino-Ultracentral | Apartament langa plaja cu vedere la mare
Constanta, Centru 380.000€
4 camere 2 bai 116mp
Imagine 167
Apartament decomandat cu terasa generoasa, Faleză Nord -orientare spre răsărit
Constanta, Faleza Nord 319.000€ + TVA
3 camere 2 bai 158mp
Imagine 1347
Apartament langa plaja si parc in imobil magnifique
Constanta, Ultracentral 299.900€ 300.000€
4 camere 2 bai 100mp
Imagine 1255
Penthouse la inaltime cu vedere panoramica la mare si statiunea Mamaia
Mamaia, Nord 365.000€
4 camere 3 bai 190mp
Imagine 1655
Penthouse cu terasa , piscina si vedere catre lac
Mamaia, Central 338.999€ + TVA
3 camere 254mp
Imagine 521
White Tower | Pe plaja langa cele mai apreciate cluburi | Parcare
Mamaia, Nord 349.999€ + TVA
3 camere 2 bai 110mp